Добро пожаловать на http://vipplan.ru

Випплан Удомля - это тысячи проектов домов в нашем каталоге!

Вы всегда сможете найти для себя проект дома вашей мечты! Даже если этого не случилось, мы готовы в любую минуту предложить проект индивидуального дома.

Забыли пароль?
Вы еще не регистрировались?

Перейдите по ссылке ниже на страницу регистрации.

Регистрация...

Внимание!!!

В проектную документацию могут быть внесены изменения любой сложности, в соответствии в Вашими пожеланиями!

Полезные статьи

Советы по проектированию дома

Представляем Вашему вниманию несколько советов по проектированию дома. Все что касается выбора участка, размещению дома на участке, подбора проекта на строительство дома, советы по выбору технологии строительства и материалов и т.д....

Правильная изоляция подвала

Какой выбрать материал, как правильно выполнить работу, перед началом изоляции подвала какие подготовительно-строительные работы следует провести и какой момент играет правильное выполнение работ. Последние несколько лет придали много хлопот жильцам домов, увлажнив им подвалы. Этот период показал насколько важно обеспечить надлежащую защиту зданий от грунтовых вод и воздействия влаги....

Проекты домов и коттеджей > Каталог проектов домов > Дом с мансардой, гаражом, террасой и балконами - 1 секция Vg968

Дом с мансардой, гаражом, террасой и балконами - 1 секция Vg968

Дом с мансардой, гаражом, террасой и балконами - 1 секция
Зарегистрируйтесь

Проект № Vg968


Техническое описание
Общая площадь: 134.96 м2
Жилая площадь: 66.08 м2
Высота здания: 8.67 м
Размеры дома: 8.36м×12.79м
Кол-во комнат: 4
Цокольный этаж: нет
Гараж: нет
Мансарда: есть

Kонструкция
Фундамент: буронабивной (свайно-ростверковый)
Перекрытия: деревянные балки
Материал стен: Каркас

Архитектурный раздел
Конструктивный раздел
АР+КР - 52 000 (Со скидкой 20%)
Проект индивидуального двухсекционного дачного дома с мансардой с размерами здания 8,36x25,58 м. Наружная отделка здания - сайдинг (стеновой, цокольный) Фундамент - буронабивной (свайно-ростверковый). Ростверк - монолитный, ж/б. Наружные стены - деревянный каркас. Между стойками каркаса заложить тепло-шумоизоляционные материалы, предусмотреть пароизоляцию. Состав стены: Доска, OSB-3 с двух сторон, снаружи обшивка сайдингом. Внутренние стены, перегородки - доска, декоративная отделка с двух сторон (по дизайн-проекту). Между стойками каркаса заложить тепло-шумоизоляционные материалы, пароизоляцию. Пол первого этажа - пол по грунту. Межэтажное перекрытие: по деревянным балкам с пароизоляцией и использованием тепло-шумоизоляционных материалов в межбалочном пространстве. Черновой пол: OSB-3. Крыша - многоскатная. Материал кровли - металлочерепица. Окна - металлопластиковые, выполненные по индивидуальному заказу. Лестница выполняется по индивидуальному заказу.
Генплан застройки участка / Паспорт проекта 7000 руб / 10000 руб
Инженерный раздел (полный) 67500 руб
Смета на строительство 33750 руб
Теплотехнический расчет материалов стен Бесплатно
Стоимость проекта со незначительнми изменениями 61600 руб
Стоимость проекта со средними изменениями* 71800 руб
Стоимость проекта со значительными изменениями** 74500 руб

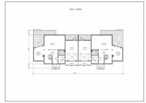
План первого этажа


Гостиная - 23,27 кв м
Крыльцо - 5,27 кв м
Гараж - 20,21 кв м
Гардероб - 4,21 кв м
С/у - 2,43 кв м
Холл - 8,89 кв м
Кухня - 11,25 кв м
Терраса - 17,97 кв м

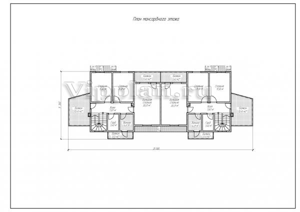
План мансардного этажа


Спальня - 20,21 кв м
Спальня - 11,30 кв м
Спальня - 11,30 кв м
Холл - 7,87 кв м
Гардероб - 3,40 кв м
Ванная - 4,21 кв м
Балкон - 3,53 кв м
Балкон - 12,45 кв м
Балкон - 5,43 кв м
Дом с мансардой, гаражом, террасой и балконами - 1 секция Дом с мансардой, гаражом, террасой и балконами - 1 секция Дом с мансардой, гаражом, террасой и балконами - 1 секция Дом с мансардой, гаражом, террасой и балконами - 1 секция
Внесение изменений и привязка к участку строительства

В любой из проектов от компании VIPplan - Удомля по вашему желанию могут быть внесены изменения в материалы стен, материалы наружной отделки дома, а также будет произведена адаптация проекта под конкретный регион строительства (с учетом грунтов региона, геологических особенностей вашего участка и местных климатических условий) - БЕСПЛАТНО !!! (кроме проектов со скидкой и проектов наших партнеров).

Любой из проектов, размещенных на сайте udomlya.vipplan.ru мы можем выполнить из требуемых вам строительных материалов: ячеистый бетон (газобетон, пеноблок), керамоблок, кирпич, шлакоблок, бетонный блок, дерево (брус, клееный брус), каркасная технология (деревянный каркас, металлокаркас (ЛСТК)).

Фасад дома и его наружную отделку так же возможно выполнить с применением различных облицовочных материалов: структурной штукатурки, (с утеплителем и без), сайдингом (пластиковый или металлосайдинг), фиброплитами, кирпича.

 
6 Избранные
проекты

Доставка проектов по России: Москва (Московская область), Санкт-Петербург (Ленинградская область), Краснодар, Ростов-на-Дону, Ставрополь, Сочи, Волгоград, Новосибирск, Белгород, Брянск, Воронеж, Саратов, Хабаровск, Астрахань, Нальчик, Владикавказ, Екатеринбург, Тюмень, Самара, Нижний Новгород, Казань, Пермь, Уфа, Челябинск, Красноярск, Ханты-Мансийск, Иркутск, Курган, Оренбург, Омск, Томск, Барнаул, Новокузнецк, Кемерово, Абакан, Чита, Якутск, Южно-Сахалинск, Петропавловск-Камчатский и страны ближнего зарубежья: Белоруссия, Украина, Казахстан