Добро пожаловать на http://vipplan.ru

Випплан Удомля - это тысячи проектов домов в нашем каталоге!

Вы всегда сможете найти для себя проект дома вашей мечты! Даже если этого не случилось, мы готовы в любую минуту предложить проект индивидуального дома.

Забыли пароль?
Вы еще не регистрировались?

Перейдите по ссылке ниже на страницу регистрации.

Регистрация...

Внимание!!!

В проектную документацию могут быть внесены изменения любой сложности, в соответствии в Вашими пожеланиями!

Полезные статьи

Технология строительства быстровозводимых домов

Погода бывает разной и показывает свой характер и он не редко оказывается малоприятным. Прекрасная солнечная погода сменяется то жарой, то резким похолоданием, то проливными дождями. Когда наступает зима, вопрос утепления деревянного дома становится все актуальнее и актуальнее. Если вы планируете построить дом в конце осени, то вам нужно знать,что микроклимат который будет создаваться внутри, повлияет на сопротивляемость организма, к простуде и прочим вирусным заболеваниям. Да и в теплом уютном доме приятно проводить время, когда за окном вьюга и стужа....

Советы по проектированию дома

Представляем Вашему вниманию несколько советов по проектированию дома. Все что касается выбора участка, размещению дома на участке, подбора проекта на строительство дома, советы по выбору технологии строительства и материалов и т.д....

Проекты домов и коттеджей > Каталог проектов домов > Одноэтажный дом с террасой и навесом Vg2421

Одноэтажный дом с террасой и навесом Vg2421

Одноэтажный дом с террасой и навесом
Зарегистрируйтесь

Проект № Vg2421


Техническое описание
Общая площадь: 95.97 м2
Жилая площадь: 44.9 м2
Высота здания: 6.67 м
Размеры дома: 10.58м×10.58м
Кол-во комнат: 2
Цокольный этаж: нет
Гараж: нет
Мансарда: нет

Kонструкция
Фундамент: Винтовые сваи
Перекрытия: Деревянные балки
Материал стен: Дерево

Архитектурный раздел
Конструктивный раздел
АР+КР - 44 000 (Со скидкой 20%)
Модель проекта индивидуального одноэтажного жилого дома с размерами здания 10,58 x 10,58 м. Наружная отделка здания – сайдинг. Фундамент – винтовые сваи. Наружные стены – деревянный брус. Внутренние стены - деревянный брус. Перегородки - деревянный брус. Пол первого этажа и чердачное перекрытие —деревянные балки. Крыша многоскатная. Кровля – металлочерепица. Окна — металлопластиковые
Генплан застройки участка / Паспорт проекта 7000 руб / 10000 руб
Инженерный раздел (полный) 50000 руб
Смета на строительство 25000 руб
Теплотехнический расчет материалов стен Бесплатно
Стоимость проекта со незначительнми изменениями 52600 руб
Стоимость проекта со средними изменениями* 59800 руб
Стоимость проекта со значительными изменениями** 61700 руб

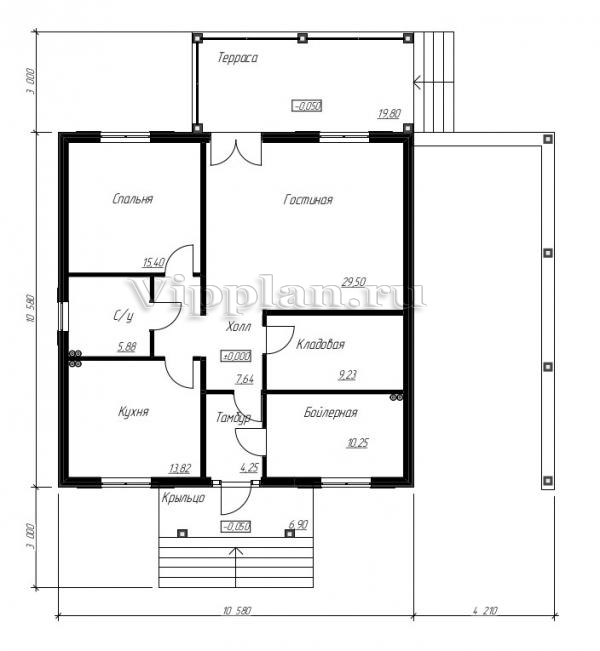
План первого этажа


Тамбур — 4,25 кв м
Холл — 7,64 кв м
Гостиная — 29,50 кв м
Кухня — 13,82 кв м
Спальня — 15,40 кв м
С/у — 5,88 кв м
Кладовая — 9,23 кв м
Бойлерная — 10,25 кв м
Одноэтажный дом с террасой и навесом Одноэтажный дом с террасой и навесом Одноэтажный дом с террасой и навесом Одноэтажный дом с террасой и навесом

Модификации проектов

Внесение изменений и привязка к участку строительства

В любой из проектов от компании VIPplan - Удомля по вашему желанию могут быть внесены изменения в материалы стен, материалы наружной отделки дома, а также будет произведена адаптация проекта под конкретный регион строительства (с учетом грунтов региона, геологических особенностей вашего участка и местных климатических условий) - БЕСПЛАТНО !!! (кроме проектов со скидкой и проектов наших партнеров).

Любой из проектов, размещенных на сайте udomlya.vipplan.ru мы можем выполнить из требуемых вам строительных материалов: ячеистый бетон (газобетон, пеноблок), керамоблок, кирпич, шлакоблок, бетонный блок, дерево (брус, клееный брус), каркасная технология (деревянный каркас, металлокаркас (ЛСТК)).

Фасад дома и его наружную отделку так же возможно выполнить с применением различных облицовочных материалов: структурной штукатурки, (с утеплителем и без), сайдингом (пластиковый или металлосайдинг), фиброплитами, кирпича.

 
6 Избранные
проекты

Доставка проектов по России: Москва (Московская область), Санкт-Петербург (Ленинградская область), Краснодар, Ростов-на-Дону, Ставрополь, Сочи, Волгоград, Новосибирск, Белгород, Брянск, Воронеж, Саратов, Хабаровск, Астрахань, Нальчик, Владикавказ, Екатеринбург, Тюмень, Самара, Нижний Новгород, Казань, Пермь, Уфа, Челябинск, Красноярск, Ханты-Мансийск, Иркутск, Курган, Оренбург, Омск, Томск, Барнаул, Новокузнецк, Кемерово, Абакан, Чита, Якутск, Южно-Сахалинск, Петропавловск-Камчатский и страны ближнего зарубежья: Белоруссия, Украина, Казахстан