Добро пожаловать на http://vipplan.ru

Випплан Удомля - это тысячи проектов домов в нашем каталоге!

Вы всегда сможете найти для себя проект дома вашей мечты! Даже если этого не случилось, мы готовы в любую минуту предложить проект индивидуального дома.

Забыли пароль?
Вы еще не регистрировались?

Перейдите по ссылке ниже на страницу регистрации.

Регистрация...

Внимание!!!

В проектную документацию могут быть внесены изменения любой сложности, в соответствии в Вашими пожеланиями!

Полезные статьи

Искусственный камень

Среди современных материалов, особого внимания заслуживает искусственный камень. Естественность и красота натурального камня очевидна. Но нужно реально оценивать свои возможности и присмотреться именно к искусственному камню, так как сам искуственный камень и стоимость производства работ с ним в Удомле значительно дешевле чем натуральный....

Фундамент под гараж

Обычно фундаменты под гараж делаются из бетонного раствора и заливаются, как монолит. Гаражные фундаменты так же можно укладывать из бетона с применением бутового камня. Такие фундаменты тоже считаются монолитными. В этом случае происходит экономия бетона....

Проекты домов и коттеджей > Каталог проектов домов > Одноэтажный дом с мансардой и гаражом на склоне Vg2236

Одноэтажный дом с мансардой и гаражом на склоне Vg2236

Одноэтажный дом с мансардой и гаражом на склоне
Зарегистрируйтесь

Проект № Vg2236


Техническое описание
Общая площадь: 227.84 м2
Жилая площадь: 101.32 м2
Высота здания: 8.42 м
Размеры дома: 12м×18.9м
Кол-во комнат: 5
Цокольный этаж: нет
Гараж: есть
Мансарда: есть

Kонструкция
Фундамент: монолитная ж/б плита
Перекрытия: металлические балки
Материал стен: Газобетон

Архитектурный раздел
Конструктивный раздел
АР+КР - 64 000 (Со скидкой 20%)
Проект индивидуального одноэтажного жилого дома с мансардой с размерами здания 12,00 x 18,90 м. Наружная отделка здания – фиброцементные плиты. Фундамент –монолитная ж/б плита. Наружные стены –газобетонные блоки, с утеплением и отделкой фиброцементными плитами. Внутренние стены - газобетонные блоки. Перегородки – ГКЛ на металлическом каркасе. Пол первого этажа и межэтажное перекрытие - металлические балки. Крыша многгоскатная. Кровля – металлочерепица. Окна — металлопластиковые
Генплан застройки участка / Паспорт проекта 7000 руб / 10000 руб
Инженерный раздел (полный) 114000 руб
Смета на строительство 57000 руб
Теплотехнический расчет материалов стен Бесплатно
Стоимость проекта со незначительнми изменениями 74300 руб
Стоимость проекта со средними изменениями* 91400 руб
Стоимость проекта со значительными изменениями** 96000 руб

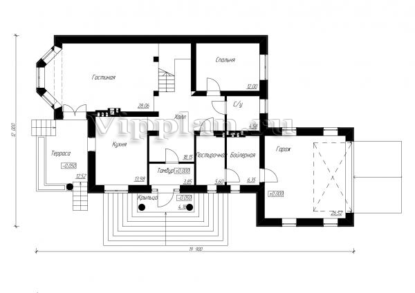
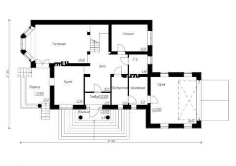
План первого этажа


Тамбур — 3,85 кв м
Холл — 18,15 кв м
Гостиная — 28,06 кв м
Спальня — 12 кв м
Кухня — 13,98 кв м
С/у — 4,58 кв м
Постирочная — 5,6 кв м
Бойлерная — 6,35 кв м
Гараж — 26,52 кв м

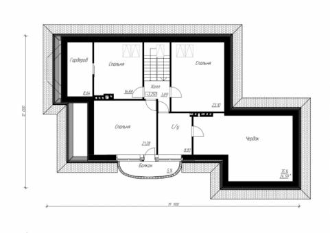
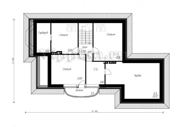
План мансардного этажа


Холл — 3,89 кв м
Гардероб — 8,64 кв м
Спальня — 16,88 кв м
Спальня — 23,1 кв м
Спальня — 21,28 кв м
С/у — 8,83 кв м
Чердак — 35,14 кв м
Одноэтажный дом с мансардой и гаражом на склоне Одноэтажный дом с мансардой и гаражом на склоне Одноэтажный дом с мансардой и гаражом на склоне Одноэтажный дом с мансардой и гаражом на склоне

Модификации проектов

Внесение изменений и привязка к участку строительства

В любой из проектов от компании VIPplan - Удомля по вашему желанию могут быть внесены изменения в материалы стен, материалы наружной отделки дома, а также будет произведена адаптация проекта под конкретный регион строительства (с учетом грунтов региона, геологических особенностей вашего участка и местных климатических условий) - БЕСПЛАТНО !!! (кроме проектов со скидкой и проектов наших партнеров).

Любой из проектов, размещенных на сайте udomlya.vipplan.ru мы можем выполнить из требуемых вам строительных материалов: ячеистый бетон (газобетон, пеноблок), керамоблок, кирпич, шлакоблок, бетонный блок, дерево (брус, клееный брус), каркасная технология (деревянный каркас, металлокаркас (ЛСТК)).

Фасад дома и его наружную отделку так же возможно выполнить с применением различных облицовочных материалов: структурной штукатурки, (с утеплителем и без), сайдингом (пластиковый или металлосайдинг), фиброплитами, кирпича.

 
6 Избранные
проекты

Доставка проектов по России: Москва (Московская область), Санкт-Петербург (Ленинградская область), Краснодар, Ростов-на-Дону, Ставрополь, Сочи, Волгоград, Новосибирск, Белгород, Брянск, Воронеж, Саратов, Хабаровск, Астрахань, Нальчик, Владикавказ, Екатеринбург, Тюмень, Самара, Нижний Новгород, Казань, Пермь, Уфа, Челябинск, Красноярск, Ханты-Мансийск, Иркутск, Курган, Оренбург, Омск, Томск, Барнаул, Новокузнецк, Кемерово, Абакан, Чита, Якутск, Южно-Сахалинск, Петропавловск-Камчатский и страны ближнего зарубежья: Белоруссия, Украина, Казахстан