Добро пожаловать на http://vipplan.ru

Випплан Удомля - это тысячи проектов домов в нашем каталоге!

Вы всегда сможете найти для себя проект дома вашей мечты! Даже если этого не случилось, мы готовы в любую минуту предложить проект индивидуального дома.

Забыли пароль?
Вы еще не регистрировались?

Перейдите по ссылке ниже на страницу регистрации.

Регистрация...

Внимание!!!

В проектную документацию могут быть внесены изменения любой сложности, в соответствии в Вашими пожеланиями!

Полезные статьи

Правильная изоляция подвала

Какой выбрать материал, как правильно выполнить работу, перед началом изоляции подвала какие подготовительно-строительные работы следует провести и какой момент играет правильное выполнение работ. Последние несколько лет придали много хлопот жильцам домов, увлажнив им подвалы. Этот период показал насколько важно обеспечить надлежащую защиту зданий от грунтовых вод и воздействия влаги....

Применение свайных фундаментов

Сваи представляют собой длинные стержни, погруженные глубоко в грунт или изготовленные непосредственно в грунте. Покупные сваи с одной стороны имеют заостренный конец, который забивается в почву с помощью специальной техники. Установка свай, изготовленных своими руками, предполагают бурение скважин, армирование и заливку бетонного раствора. ...

Проекты домов и коттеджей > Каталог проектов домов > Двухэтажный дом с гаражом и террасой Vg1350

Двухэтажный дом с гаражом и террасой Vg1350

Двухэтажный дом с гаражом и террасой
Зарегистрируйтесь

Проект № Vg1350


Техническое описание
Общая площадь: 205.9 м2
Жилая площадь: 90.09 м2
Высота здания: 9.13 м
Размеры дома: 12м×16м
Кол-во комнат: 5
Цокольный этаж: нет
Гараж: нет
Мансарда: нет

Kонструкция
Фундамент: Ленточный
Перекрытия: Сборные ж/б плиты
Материал стен: Газобетон

Архитектурный раздел
Конструктивный раздел
АР+КР - 64 000 (Со скидкой 20%)
Проект индивидуального двухэтажного жилого дома с размерами здания 12,00 x 16,00 м. Наружная отделка здания – фасадная штукатурка, клинкерная плитка, деревянные панели. Фундамент – ленточный монолитный ж/б под несущими стенами. Наружные стены – из газобетонного блока, утеплителя — минеральной ваты, с отделкой фасадной штукатуркой, клинкерной плиткой, деревянными панелями. Внутренние стены - из газобетонного блока. Перегородки – из газобетонного блока. Пол первого этажа - пол по грунту. Межэтажное перекрытие — сборные ж/б плиты перекрытия. Чердачное перекрытие - деревянные балки. Крыша четырехскатная. Кровля – металлочерепица. Окна — металлопластиковые
Генплан застройки участка / Паспорт проекта 7000 руб / 10000 руб
Инженерный раздел (полный) 103000 руб
Смета на строительство 51500 руб
Теплотехнический расчет материалов стен Бесплатно
Стоимость проекта со незначительнми изменениями 74850 руб
Стоимость проекта со средними изменениями* 90300 руб
Стоимость проекта со значительными изменениями** 94400 руб

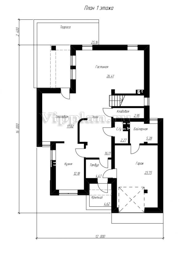
План первого этажа


Тамбур — 4,41 м2
Холл — 16,11 м2
Гостиная — 26,41 м2
Столовая — 17,62 м2
Кухня — 12,18 м2
Кладовая — 2,95 м2
С/у — 2,27 м2
Бойлерная — 5,28 м2
Гараж — 23,75 м2

Двухэтажный дом с гаражом и террасой

Двухэтажный дом с гаражом и террасой

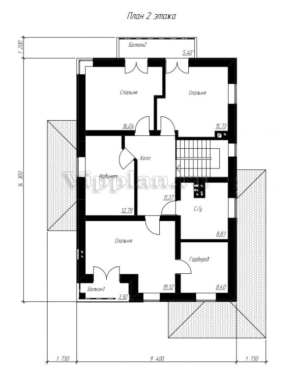
План второго этажа


Холл — 11,37 м2
Спальня — 16,04 м2
Спальня — 15,73 м2
Абинет — 12,79 м2
Спальня — 19,12 м2
С/у — 8,81 м2
Гардероб — 8,40 м2

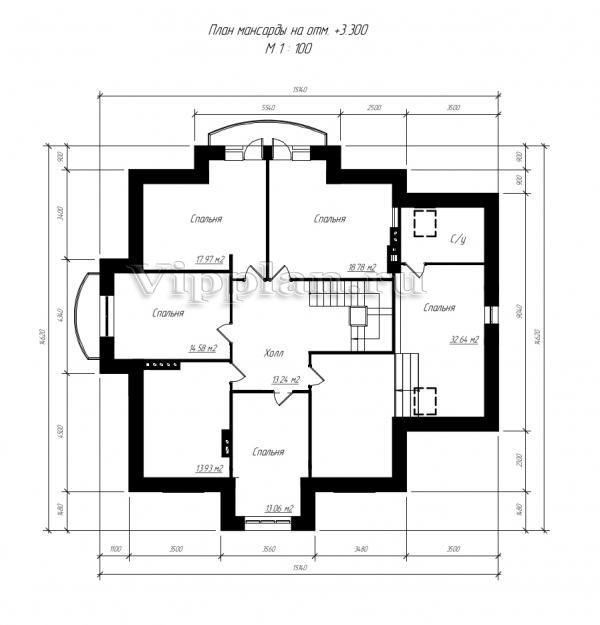
План мансардного этажа



Двухэтажный дом с гаражом и террасой Двухэтажный дом с гаражом и террасой Двухэтажный дом с гаражом и террасой Двухэтажный дом с гаражом и террасой

Модификации проектов

Внесение изменений и привязка к участку строительства

В любой из проектов от компании VIPplan - Удомля по вашему желанию могут быть внесены изменения в материалы стен, материалы наружной отделки дома, а также будет произведена адаптация проекта под конкретный регион строительства (с учетом грунтов региона, геологических особенностей вашего участка и местных климатических условий) - БЕСПЛАТНО !!! (кроме проектов со скидкой и проектов наших партнеров).

Любой из проектов, размещенных на сайте udomlya.vipplan.ru мы можем выполнить из требуемых вам строительных материалов: ячеистый бетон (газобетон, пеноблок), керамоблок, кирпич, шлакоблок, бетонный блок, дерево (брус, клееный брус), каркасная технология (деревянный каркас, металлокаркас (ЛСТК)).

Фасад дома и его наружную отделку так же возможно выполнить с применением различных облицовочных материалов: структурной штукатурки, (с утеплителем и без), сайдингом (пластиковый или металлосайдинг), фиброплитами, кирпича.

 
6 Избранные
проекты

Доставка проектов по России: Москва (Московская область), Санкт-Петербург (Ленинградская область), Краснодар, Ростов-на-Дону, Ставрополь, Сочи, Волгоград, Новосибирск, Белгород, Брянск, Воронеж, Саратов, Хабаровск, Астрахань, Нальчик, Владикавказ, Екатеринбург, Тюмень, Самара, Нижний Новгород, Казань, Пермь, Уфа, Челябинск, Красноярск, Ханты-Мансийск, Иркутск, Курган, Оренбург, Омск, Томск, Барнаул, Новокузнецк, Кемерово, Абакан, Чита, Якутск, Южно-Сахалинск, Петропавловск-Камчатский и страны ближнего зарубежья: Белоруссия, Украина, Казахстан