Добро пожаловать на http://vipplan.ru

Випплан Удомля - это тысячи проектов домов в нашем каталоге!

Вы всегда сможете найти для себя проект дома вашей мечты! Даже если этого не случилось, мы готовы в любую минуту предложить проект индивидуального дома.

Забыли пароль?
Вы еще не регистрировались?

Перейдите по ссылке ниже на страницу регистрации.

Регистрация...

Внимание!!!

В проектную документацию могут быть внесены изменения любой сложности, в соответствии в Вашими пожеланиями!

Полезные статьи

Укладка тротуарной плитки

При укладке тротуарной плитки, необходимо соблюдать технологию, во избежание, разрушения и расшатывания покрытия. Первый этап - подготовка основания.  ...

Применение свайных фундаментов

Сваи представляют собой длинные стержни, погруженные глубоко в грунт или изготовленные непосредственно в грунте. Покупные сваи с одной стороны имеют заостренный конец, который забивается в почву с помощью специальной техники. Установка свай, изготовленных своими руками, предполагают бурение скважин, армирование и заливку бетонного раствора. ...

Проекты домов и коттеджей > Каталог проектов домов > Дом с мансардой, террасой и балконами Vg1223

Дом с мансардой, террасой и балконами Vg1223

Дом с мансардой, террасой и балконами
Зарегистрируйтесь

Проект № Vg1223


Техническое описание
Общая площадь: 115.29 м2
Жилая площадь: 65.4 м2
Высота здания: 8.64 м
Размеры дома: 14.85м×12.21м
Кол-во комнат: 4
Цокольный этаж: нет
Гараж: нет
Мансарда: есть

Kонструкция
Фундамент: Щелевой
Перекрытия: Монолитные перекрытия
Материал стен: Бетонные блоки

Архитектурный раздел
Конструктивный раздел
АР+КР - 48 000 (Со скидкой 20%)
Срок подготовки проекта – 7 рабочих дней. Проект индивидуального одноэтажного жилого дома с мансардой с размерами здания 14,85 x 12.21 м. Наружная отделка здания – штукатурка, клинкерная плитка. Фундамент – щелевой (стена в грунте). Наружные стены – газобетонные блоки Ytong. Внутренние стены - газобетонные блоки. Перегородки — кирпич. Снаружи вентканалы и дымоходы – штукатурка. Перекрытие межэтажное – монолитная плита. Пол первого этажа - пол по грунту. Крыша двухскатая. Кровля - гибкая черепица. Окна - металлопластиковые, выполненные по индивидуальному заказу.
Генплан застройки участка / Паспорт проекта 7000 руб / 10000 руб
Инженерный раздел (полный) 57500 руб
Смета на строительство 28750 руб
Теплотехнический расчет материалов стен Бесплатно
Стоимость проекта со незначительнми изменениями 57100 руб
Стоимость проекта со средними изменениями* 65800 руб
Стоимость проекта со значительными изменениями** 68100 руб

План первого этажа


Холл — 7,1 кв м
Гостиная — 23,8 кв м
Кухня — 12,8 кв м
Котельная — 5,7 кв м
С/у — 4,6 кв м
Кладовая — 3,6 кв м

Дом с мансардой, террасой и балконами

Дом с мансардой, террасой и балконами

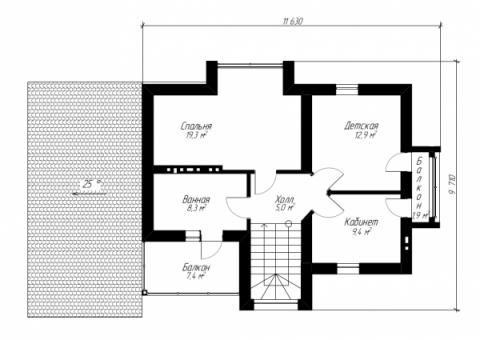
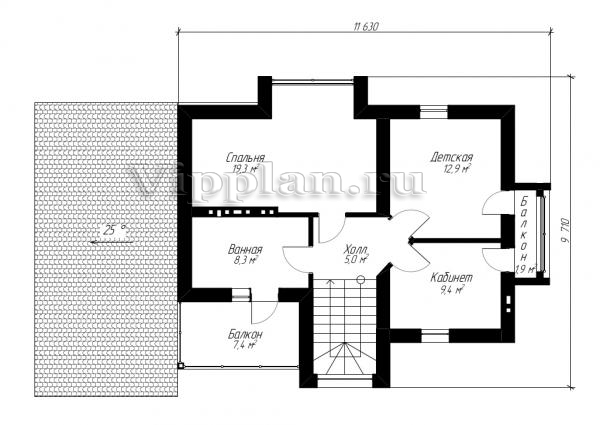
План второго этажа


Холл — 5,0 кв м
Спальня — 19,3 кв м
Детская — 12,9 кв м
Кабинет — 9,4 кв м
Ванная — 8,3 кв м
Спальня — 19,3 кв м

План мансардного этажа



Дом с мансардой, террасой и балконами Дом с мансардой, террасой и балконами Дом с мансардой, террасой и балконами Дом с мансардой, террасой и балконами

Модификации проектов

Внесение изменений и привязка к участку строительства

В любой из проектов от компании VIPplan - Удомля по вашему желанию могут быть внесены изменения в материалы стен, материалы наружной отделки дома, а также будет произведена адаптация проекта под конкретный регион строительства (с учетом грунтов региона, геологических особенностей вашего участка и местных климатических условий) - БЕСПЛАТНО !!! (кроме проектов со скидкой и проектов наших партнеров).

Любой из проектов, размещенных на сайте udomlya.vipplan.ru мы можем выполнить из требуемых вам строительных материалов: ячеистый бетон (газобетон, пеноблок), керамоблок, кирпич, шлакоблок, бетонный блок, дерево (брус, клееный брус), каркасная технология (деревянный каркас, металлокаркас (ЛСТК)).

Фасад дома и его наружную отделку так же возможно выполнить с применением различных облицовочных материалов: структурной штукатурки, (с утеплителем и без), сайдингом (пластиковый или металлосайдинг), фиброплитами, кирпича.

 
6 Избранные
проекты

Доставка проектов по России: Москва (Московская область), Санкт-Петербург (Ленинградская область), Краснодар, Ростов-на-Дону, Ставрополь, Сочи, Волгоград, Новосибирск, Белгород, Брянск, Воронеж, Саратов, Хабаровск, Астрахань, Нальчик, Владикавказ, Екатеринбург, Тюмень, Самара, Нижний Новгород, Казань, Пермь, Уфа, Челябинск, Красноярск, Ханты-Мансийск, Иркутск, Курган, Оренбург, Омск, Томск, Барнаул, Новокузнецк, Кемерово, Абакан, Чита, Якутск, Южно-Сахалинск, Петропавловск-Камчатский и страны ближнего зарубежья: Белоруссия, Украина, Казахстан