Добро пожаловать на http://vipplan.ru

Випплан Удомля - это тысячи проектов домов в нашем каталоге!

Вы всегда сможете найти для себя проект дома вашей мечты! Даже если этого не случилось, мы готовы в любую минуту предложить проект индивидуального дома.

Забыли пароль?
Вы еще не регистрировались?

Перейдите по ссылке ниже на страницу регистрации.

Регистрация...

Внимание!!!

В проектную документацию могут быть внесены изменения любой сложности, в соответствии в Вашими пожеланиями!

Полезные статьи

Выбор участка для строительства дома

Если вы решили приобрести участок земли и построить на нем дом или дачу. То данная статья специально для вас. А так же мы поможем вам в выборе проекта для выбранного вами участка....

Окна в доме

От хорошего стеклопакета зависит почти 50% теплостойкости всего дома. Ведь на проемы в окнах приходится до 45% тепловых потерь дома. Поэтому хорошие стеклопакеты не пропускают тепло из комнаты и должны противостоять проникновению ветра, влаги и холода с наружной стороны....

Проекты домов и коттеджей > Каталог проектов домов > Уютный двухэтажный дом Vg1146

Уютный двухэтажный дом Vg1146

Уютный двухэтажный дом
Зарегистрируйтесь

Проект № Vg1146


Техническое описание
Общая площадь: 69.25 м2
Жилая площадь: 40.39 м2
Высота здания: 8.35 м
Размеры дома: 9.14м×5.04м
Цокольный этаж: нет
Гараж: нет
Мансарда: нет

Kонструкция
Фундамент: Винтовые сваи
Перекрытия: Деревянные балки
Материал стен: Каркас

Архитектурный раздел
АР+КР - 40 000 (Со скидкой 20%)
Проект индивидуального двухэтажного жилого дома в Московской области. Габаритные размеры 9,14 х 5,04 м. Наружная отделка здания – штукатурка 2х оттенков. Цоколь – камень. Кровля – битумная черепица. Фундамент – винтовые сваи Наружные стены: деревянный каркас с обшивкой OSB-3. Внутренние стены и перегородки каркасные с ГКЛ. Пол первого этажа – по деревянным лагам. Межэтажное перекрытие - по деревянным балкам с использованием теплошумоизоляционных материалов типа «URSA» в межбалочном пространстве. Крыша двускатная. Окна металлопластиковые, выполненные по индивидуальному заказу.
Генплан застройки участка / Паспорт проекта 7000 руб / 10000 руб
Инженерный раздел (полный) 50000 руб
Смета на строительство 25000 руб
Теплотехнический расчет материалов стен Бесплатно
Стоимость проекта со незначительнми изменениями 48250 руб
Стоимость проекта со средними изменениями* 53500 руб
Стоимость проекта со значительными изменениями** 54800 руб

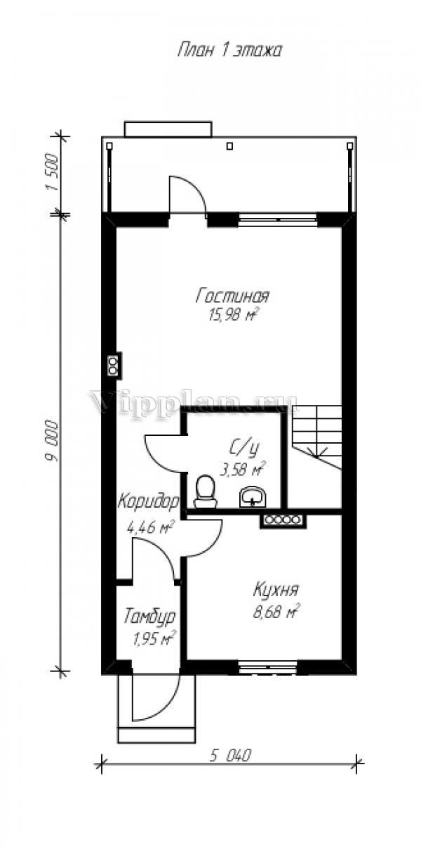
План первого этажа


Тамбур — 1,95 м2
Коридор — 4,46 м2
Гостиная — 15,98 м2
С/у — 3,58 м2
Кухня — 8,68 м2

Уютный двухэтажный дом

Уютный двухэтажный дом

План второго этажа


Холл — 5,62 м2
Спальня — 11,38 м2
С/у — 4,39 м2
Спальня — 13,03 м2
Уютный двухэтажный дом Уютный двухэтажный дом Уютный двухэтажный дом Уютный двухэтажный дом

Модификации проектов

Внесение изменений и привязка к участку строительства

В любой из проектов от компании VIPplan - Удомля по вашему желанию могут быть внесены изменения в материалы стен, материалы наружной отделки дома, а также будет произведена адаптация проекта под конкретный регион строительства (с учетом грунтов региона, геологических особенностей вашего участка и местных климатических условий) - БЕСПЛАТНО !!! (кроме проектов со скидкой и проектов наших партнеров).

Любой из проектов, размещенных на сайте udomlya.vipplan.ru мы можем выполнить из требуемых вам строительных материалов: ячеистый бетон (газобетон, пеноблок), керамоблок, кирпич, шлакоблок, бетонный блок, дерево (брус, клееный брус), каркасная технология (деревянный каркас, металлокаркас (ЛСТК)).

Фасад дома и его наружную отделку так же возможно выполнить с применением различных облицовочных материалов: структурной штукатурки, (с утеплителем и без), сайдингом (пластиковый или металлосайдинг), фиброплитами, кирпича.

 
6 Избранные
проекты

Доставка проектов по России: Москва (Московская область), Санкт-Петербург (Ленинградская область), Краснодар, Ростов-на-Дону, Ставрополь, Сочи, Волгоград, Новосибирск, Белгород, Брянск, Воронеж, Саратов, Хабаровск, Астрахань, Нальчик, Владикавказ, Екатеринбург, Тюмень, Самара, Нижний Новгород, Казань, Пермь, Уфа, Челябинск, Красноярск, Ханты-Мансийск, Иркутск, Курган, Оренбург, Омск, Томск, Барнаул, Новокузнецк, Кемерово, Абакан, Чита, Якутск, Южно-Сахалинск, Петропавловск-Камчатский и страны ближнего зарубежья: Белоруссия, Украина, Казахстан